MADISON STREET RESIDENCE
Project Status: In Progress
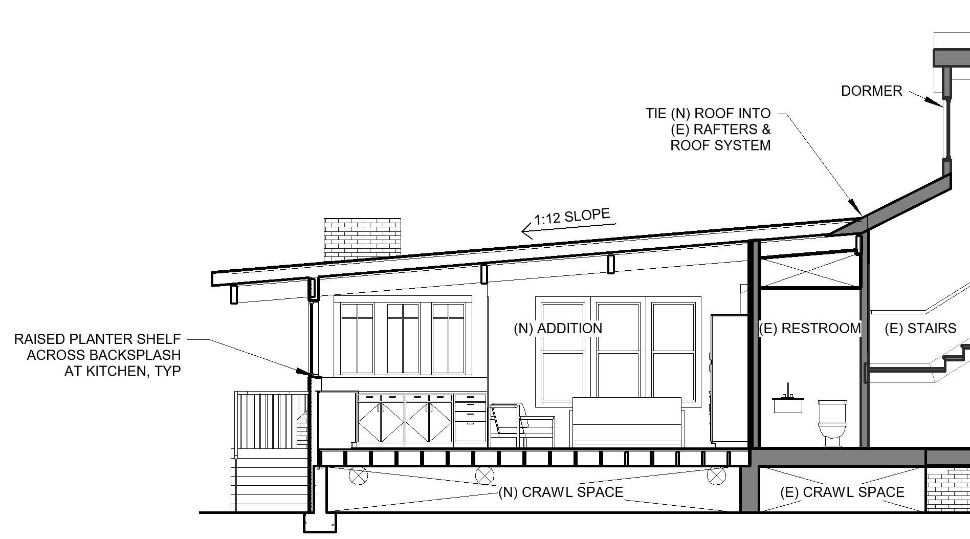
Located in the Houston Historic District, the owners of the Madison Street Residence decided that they needed a larger & more functional kitchen and washroom space within their historic bungalow style residence. In order to achieve this, it was necessary to remove a non-historic addition at the rear of the property in order to design a larger space with a better connection to the original aesthetic of the house. The design package and renderings allowed them to visualize the future of their home and to coordinate that vision with a contractor. The project has recently been approved by the Historic Commission and is slated to begin construction soon.









